Skip links
Custom Homes - Skillion 01
Pre-Sale Rendering

Skillion 01

Raised ranch house plan with 19' High Open Ceiling.

"19' High Open Ceiling"

Skillion 01

This modern raised ranch house plan offers a total of 3,810 ft² of living space under a skillion roof. The 19′ high open ceiling gives the living and dining room plenty of natural light into the spacious area. The open-concept floor plan combines the kitchen, dining room, and living room. A large, multi-purpose island offers seatings for informal meals with custom cabinetry. Sliding doors in the living room lead to a good-sized porch for outdoor enjoyment.

Client

Private Developer

Date

May 2021

Scope of Work

Architectural Concept, Photorealistic Renderings, Floor Plan

Share

Key Specs

2,367 ft² (220 m²)
51'-1" (15.6m) wide
5 Bedrooms
3.5 Baths
1.5 Storeys
2 Garages

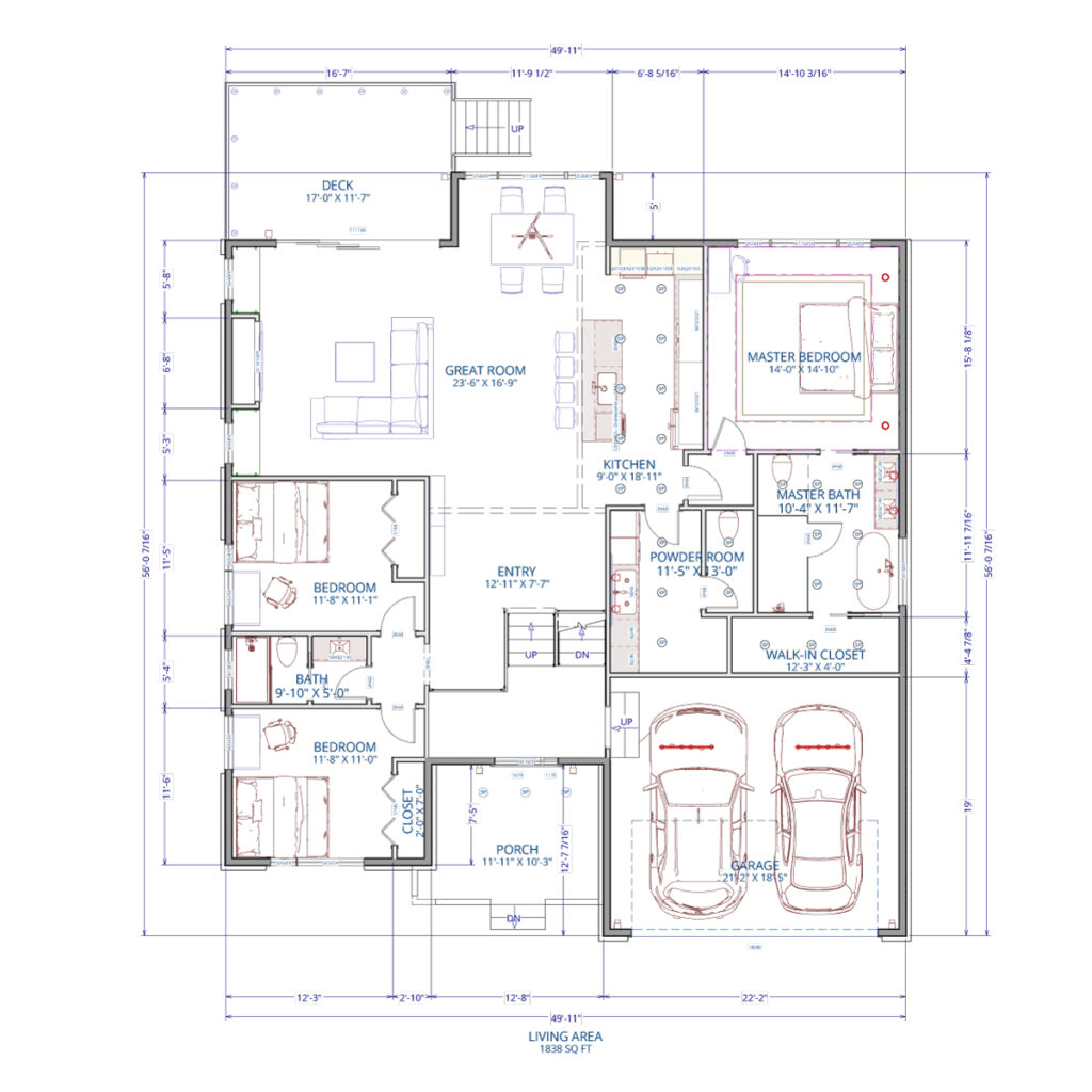
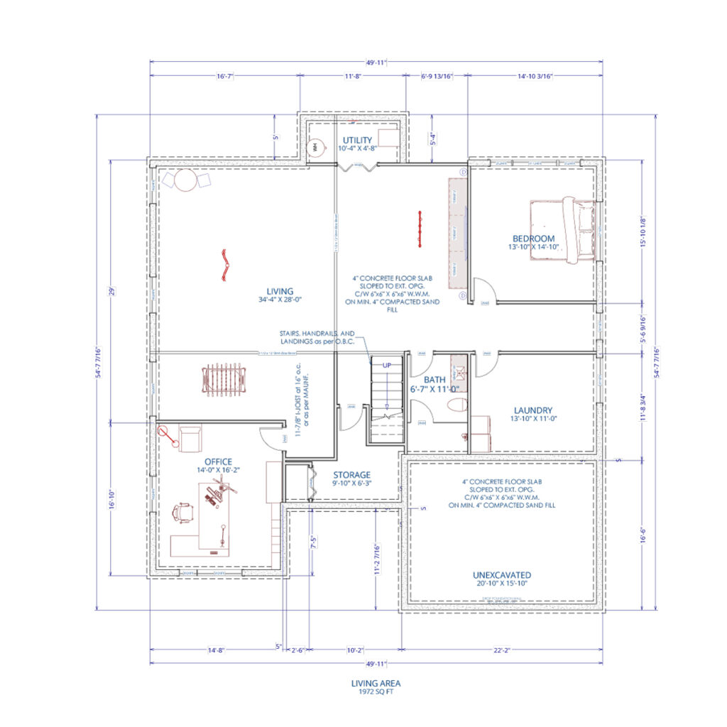
Floor Plans

Full Specs & Features

Basic Feature
Bedrooms : 3
Stories: 1.5
Baths: 3.5
Garages: 2
Property Information
Lot Dim: 60′ x 100′ (18.3m x 30.5m)
Lot Area: 6,000 ft² (557.4 m²)
Building Area
Building Footprint: 2,367 ft²
Lot Coverage: 39%
Area
Total Livable Area: 3,810 ft² (354.0 m²)
Main Floor: 1,838 ft²
Basement Floor: 1,972 ft²
Front Porch: 113 ft²
Garage: 510 ft²

* Total Square Footage typically only includes conditioned space and does not include garages, porches, bonus rooms, or decks.
Dimensions
Width: 49′-11″
Depth: 56′
Height: 25′-4″
Ceiling
Entry Foyer and Living Room Ceilings are 19′
Main Ceiling: 9′
Roof
Roof Type: Metal and TPO
Primary Pitch: 4 : 12
Roof Load: 45 PSF
This website uses cookies to improve your web experience.
zh_CN简体中文
Explore
Click -or- Drag